Join Bruster’s Ice Cream & Fabric Care – Under Construction, Delivered Summer ’26
About the Property
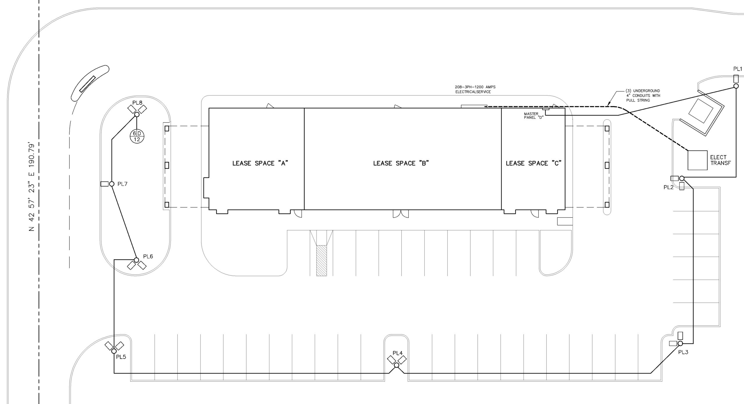
Join Bruster’s Ice Cream and Fabric Care in this new (coming) retail center on major thoroughfare to Texas A&M University. 3,100 SF remaining. Early morning and late-night traffic – going to work side. Excellent access and visibility. Dense and growing population in College Station’s growth area. McDonald’s, Dunkin Donuts and Dutch Bros are co-tenants.
pdf flyer download
Building Specifications
Total Space Available
3,100 SF (will divide)
Property Type
Retail
Property Subtype
Restaurant
Proposed Use
Retail Strip Center
Building Area
5,600 SF
Year Built
2026
Construction Status
Under Construction
Land & Zoning
Land Area
1.287 Acres
Zoning
Commercial – Retail
Parking Ratio
7.17/1,000 SF
Leasing & Financials
Lease Rate
$40/SF/YR plus NNN
Gross Leasable Area
5,300 SF
TI
Negotiable
Restrictions
TBD
